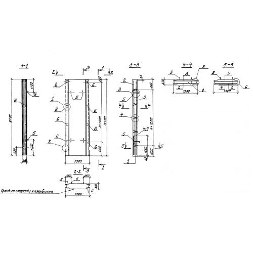
ПГ 54

Чертеж изделия:
Характеристики изделия:
ПараметрЗначение
длина1980 мм
ширина200 мм
высота5400 мм
вес5000 кг
серия3.902.1-12

ПГ 54 Панели перегородочные по серии 3.902.1-12.