2ПС 84

Чертеж изделия:
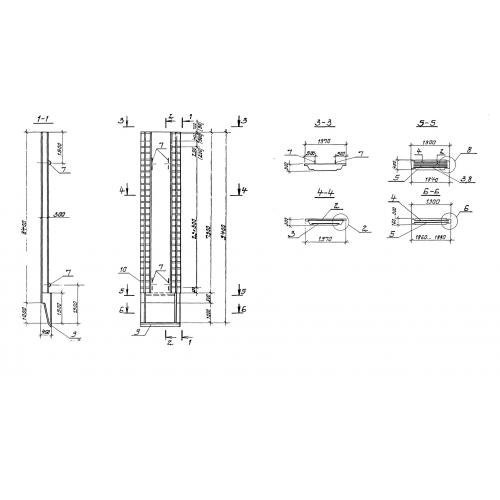
Характеристики изделия:
ПараметрЗначение
длина1970 мм
ширина450 мм
высота9400 мм
вес12020 кг
серия3.902.1-12

2ПС 84 Стеновые панели для опускных колодцев по серии 3.902.1-12.