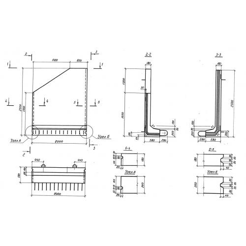
НГ 25

Чертеж изделия:
Характеристики изделия:
ПараметрЗначение
длина2000 мм
ширина870 мм
высота2500 мм
вес2480 кг
серия3.820.1-73

НГ 25 Г-образная конструкция с ныряющей вертикальной стенкой по серии 3.820.1-73.