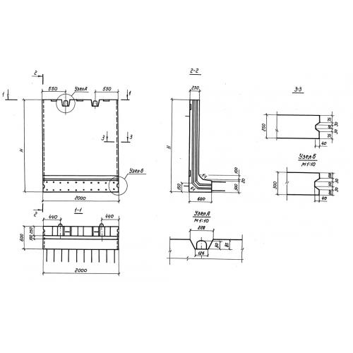
Г 20.20

Чертеж изделия:
Характеристики изделия:
ПараметрЗначение
длина2000 мм
ширина600 мм
высота2000 мм
вес2880 кг
серия3.820.1-73

Г 20.20 Г-образная конструкция для водохозяйственного строительства по серии 3.820.1-73.