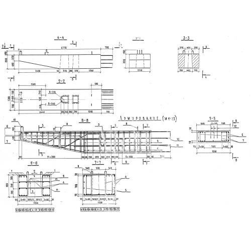
РП-1
Характеристики изделия:
| Параметр | Значение |
|---|---|
| длина | 4770 мм |
| ширина | 1200 мм |
| высота | 800 мм |
| масса | 9100 кг |
| нормативный документ | Серия 3.503-23 |
Цена:
Рассчитать стоимостьРП-1 Блоки ригеля по Серии 3.503-23.
| Параметр | Значение |
|---|---|
| длина | 4770 мм |
| ширина | 1200 мм |
| высота | 800 мм |
| масса | 9100 кг |
| нормативный документ | Серия 3.503-23 |
РП-1 Блоки ригеля по Серии 3.503-23.
