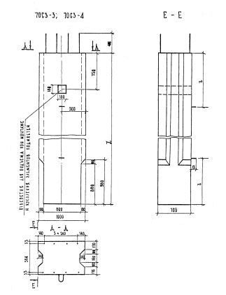
70С3-4

Чертеж изделия:
Характеристики изделия:
ПараметрЗначение
длина4280 мм
ширина1000 мм
высота820 мм
масса6100 кг
нормативный документСерия 3.503-23

70С3-4  Блоки стенок Серия 3.503-23.