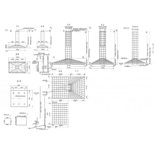
Б 3-3.5

Чертеж изделия:
Характеристики изделия:
ПараметрЗначение
длина3000 мм
ширина2000 мм
высота3500 мм
вес7250 кг
серия3.501.2-123

Б 3-3.5 Фундаментные блоки по серии 3.501.2-123.