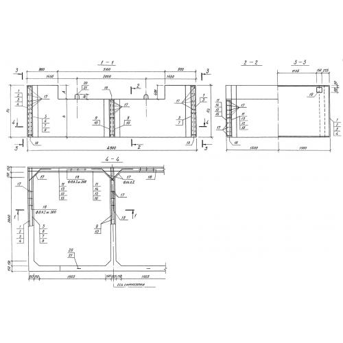
КБ 1-1.5

Чертеж изделия:
Характеристики изделия:
ПараметрЗначение
длина4900 мм
ширина3000 мм
высота1500 мм
вес9030 кг
серия3.501.1-167

КБ 1-1.5 Короба по серии 3.501.1-167.