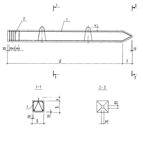
С 6-40

Чертеж изделия:
Характеристики изделия:
ПараметрЗначение
длина6350 мм
ширина400 мм
высота400 мм
вес2450 кг
серия3.015-5/86

С 6-40 Сваи прямоугольного сечения по серии 3.015-5/86.