ПТ 24

Чертеж изделия:
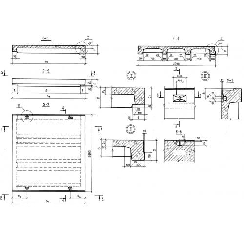
Характеристики изделия:
ПараметрЗначение
длина2990 мм
ширина2800 мм
высота300 мм
масса3480 кг
нормативный документСерия 3.006.1-3/83

ПТ 24  Плиты перекрытия тоннелей Серия 3.006.1-3/83.