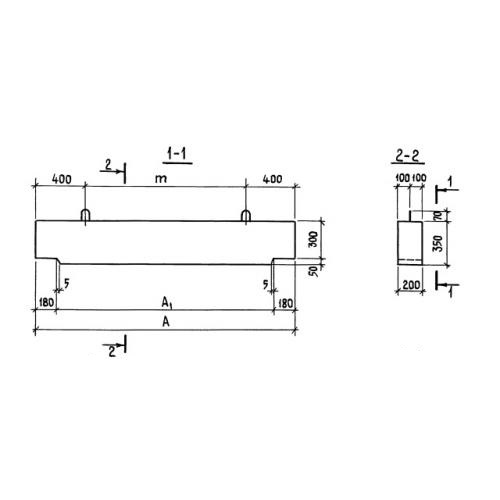
Б 21

Чертеж изделия:
Характеристики изделия:
ПараметрЗначение
длина2460 мм
ширина200 мм
высота350 мм
масса430 кг
нормативный документСерия 3.006.1-3/83

Б 21 Балки тоннелей Серия 3.006.1-3/83.