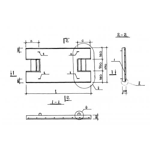
П 24.12.12

Чертеж изделия:
Характеристики изделия:
ПараметрЗначение
длина2390 мм
ширина1190 мм
высота120 мм
вес730 кг
серия1.243.1 КЛ-3

П 24.12.12  Панели перекрытий сплошные по серии 1.243.1 КЛ-3.