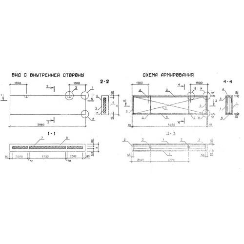
ПСТ 60.6.3.5 панели стеновые

Чертеж изделия:
Характеристики изделия:
ПараметрЗначение
длина5980 мм
ширина350 мм
высота585 мм
масса1510 кг
нормативный документСерия 1.232.1-7

ПСТ 60.6.3.5  Панели стеновые трехслойные (рядовые) Серия 1.232.1-7.