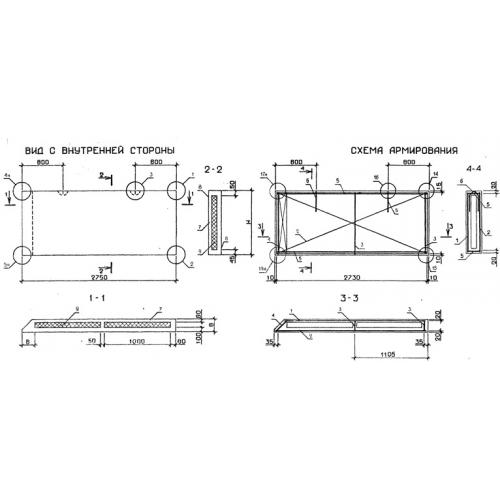
ПСТ 27.5.13.3.5 панели стеновые
Характеристики изделия:
| Параметр | Значение |
|---|---|
| длина | 2750 мм |
| ширина | 350 мм |
| выота | 1285 мм |
| масса | 1430 кг |
| нормативный документ | Серия 1.232.1-7 |
Цена:
Рассчитать стоимостьПСТ 27.5.13.3.5 Панели стеновые трехслойные (панель рядовая для внутренних углов зданий) Серия 1.232.1-7.
