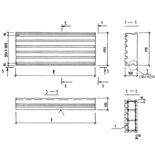
ПВ 48.12.40

Чертеж изделия:
Характеристики изделия:
ПараметрЗначение
длина4770 мм
ширина1190 мм
высота400 мм
вес1610 кг
серия1.165.1-10

ПВ 48.12.40 Вентилируемые панели покрытия по серии 1.165.1-10.