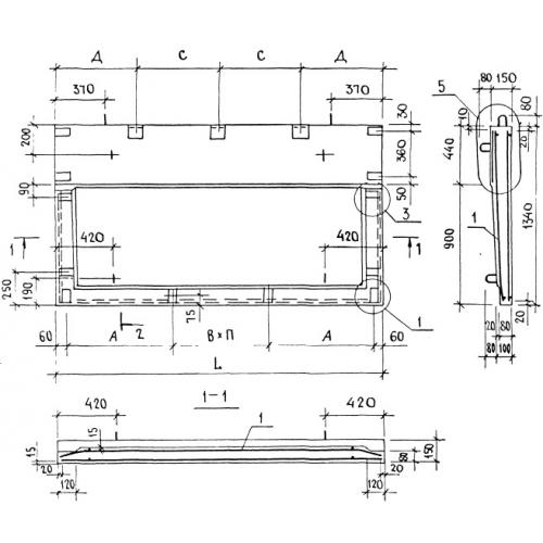
ПБК 39.13 плиты балконные

Чертеж изделия:
Характеристики изделия:
ПараметрЗначение
длина3890 мм
ширина1340 мм
высота150 мм
масса1550 кг
нормативный документСерия 1.137.1-9

ПБК 39.13  Плиты балконные консольные Серия 1.137.1-9.