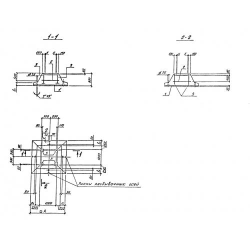
Ф1

Чертеж изделия:
Характеристики изделия:
ПараметрЗначение
длина2400 мм
ширина2400 мм
высота800 мм
вес5750 кг
серия0-221-84

Ф1 Плиты фундаментные по серии 0-221-84.