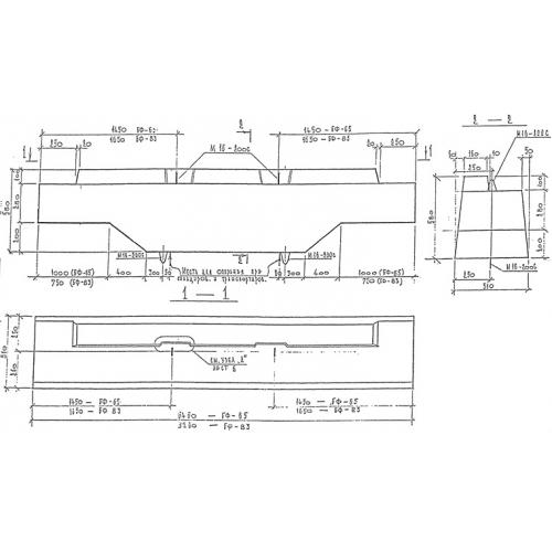
БФ 83
Характеристики изделия:
| Параметр | Значение |
|---|---|
| длина | 8260 мм |
| ширина | 510 мм |
| высота | 580 мм |
| масса | 4400 кг |
| нормативный документ | Альбом РС 1251-93 |
Цена:
Рассчитать стоимостьБФ 83 Балки фундаментные Альбом РС 1251-93.
| Параметр | Значение |
|---|---|
| длина | 8260 мм |
| ширина | 510 мм |
| высота | 580 мм |
| масса | 4400 кг |
| нормативный документ | Альбом РС 1251-93 |
БФ 83 Балки фундаментные Альбом РС 1251-93.
